
Lots 2, 3, 4, 5, 6, 7, East Riverside Park Addition – 1416 Main Street East
THE ISSUE
The City currently uses multiple buildings of varying ages to house equipment and materials to maintain infrastructure. In 2017, commissioners realized a plan was needed to accommodate changing equipment sizes, building removals due to flood protection and streamline operations for efficiency. The commission began saving funds and planning for the future need to establish a safe, efficient facility to house public works operations.
THE NEED
The City uses more than 30,200 square feet of space spread across multiple buildings throughout town. However, upcoming changes—including the demolition of two buildings and the loss of 2,600 square feet at another facility due to necessary flood protection projects and structural deterioration—will further strain existing resources and necessitate alternative storage solutions.
The City’s ability to maintain equipment is currently limited. Many essential tools, attachments, and materials are exposed to the elements, leading to premature wear and added repair costs. Limited indoor storage also forces staff to spend significant time relocating and repositioning equipment to access necessary items. Additionally, retrieving equipment from multiple locations increases labor time and reduces efficiency.
Current facility constraints require staff to conduct repairs outdoors, exposing them to harsh conditions. Outdated building heights and door dimensions also limit the City’s ability to house modern equipment, leading to higher costs and reduced competitive bidding options. Additionally, tight storage conditions increase operational inefficiencies and safety risks for staff maneuvering heavy machinery in confined spaces.
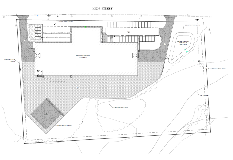
THE SOLUTION
Building a new facility brings operations together and provides enhanced structures for sewer, water, and electricity services for residents. A Service Center Complex in the heart of Valley City protects equipment, staff members and streamlines workflows. Also included in this complex is a separate Salt/Sand building that is needed to protect product from being out in the elements.
IMPROVING SAFETY FOR STAFF AND PROTECTION FOR EQUIPMENT
- Equipment will be stored indoors and be protected from the elements. This makes it safer and more efficient for staff to work on the machinery. A dedicated storage room would be created to ensure safety, compliance & proper handling of hazardous chemicals.
MATERIALS CAN BE STORED PROPERLY
- Storing materials indoors is more secure and efficient. Storing sand and salt inside reduces costs by reducing product loss, equipment malfunctions and extra labor.
CREATING A MORE EFFICIENT SPACE
- Moving equipment and materials to one site allows staff to save time currently spent driving between locations.
- A new facility ensures sustainable infrastructure for the future, reducing long-term maintenance costs.
THE FINANCIAL PLAN
The City Commission has been preparing financially for this since 2018. Below is an overview of project financing.
APPROPRIATED FUNDS
- Since 2018 the city has allocated more than $2 million in local, state and federal funds for this project.
LINE OF CREDIT FOR CONSTRUCTION
- The construction will be paid using a line of credit at 2% for 30 years.
MODEST INCREASE IN ELECTRIC UTILITY RATES
- A one-time rate increase of 4.97% went into effect in 2025.
- Property taxes will not be used to pay for this project.
OTHER INCOME
- Two of the remaining buildings will be sold and those properties will be returned to the tax roll.
OTHER OPTIONS EVALUATED
This plan has required years of research and evaluation.
OTHER LOCATIONS/OPTIONS EXAMINED
Three other locations were evaluated and found to be unsuitable.
- Four Bottle Drive has access issues during weather events when City services are critical for the health and safety of residents. It also presented geographic & engineering concerns in cases of emergencies along dewatering issues.
- Old Lime Pit-(5th Ave NE & 9th St NE) Inadequate Square Footage
- Other city land was not large enough for a facility of the size needed.
RETROFITTING THE VALLEY PLAINS BUILDING
- Extensive retrofitting and upgrades would be necessary to use the Valley Plains for a Public Works Center Complex. From adding more structures to additional height adjustments and HVAC additions and upgrades, the cost outweighed the benefit.
PROJECT TIMELINE
2017
City commission identifies need for Public Works Center & begins evaluating possible locations in city limits.
2018
City commission prepares by beginning to set funds aside for future space needs.
2021-2024
City purchases Valley Plains Building for $407,020 as future location for centralized Public Works Center. Seller rents back building until their new facility was ready.
2024
Valley Plains building sold by commission to prepare site for future building.
2025
More than $2 million has been allocated for the new building including local, state and federal funds.
A 2% interest 30-year line of credit for up to $13 million has been approved for the project.
MOVING FORWARD
The Public Works Center Complex is set to be completed in 2027. After the building is operational, current buildings and equipment will be consolidated.
LEARN MORE Follow the City of Valley City on Facebook or Instagram
Project updates will be posted by the City regularly on social media profiles.
Visit valleycity.us
Learn more about the project at valleycity.us. The site contains plans, images and detailed information about various options considered as a part of the project.
Attend a City Commission Meeting
At least 26 meetings have been held since 2018 where discussions have been held regarding the service center building. Meetings are held the 1st & 3rd Tuesdays at 5pm unless noted otherwise.